Emmy Living

Neubau eines Wohn- und Geschäftsgebäudes

Wohnungsangebot

Die Apartments – durchdacht, funktional und komfortabel​

Emmy Living

In einem der beliebtesten Stadtteile Braunschweigs entsteht mit Emmy Living ein zukunftsweisendes Wohnquartier, das modernes, barrierefreies Wohnen mit nachhaltiger Architektur und alltagsnahen Services vereint.

Ob Berufseinsteiger:in, Senior:in oder temporäre:r Mieter:in – bei uns finden Sie die passende Wohnung für Ihre Lebenssituation.

Modernes, barrierefreies Wohnen
  • Durchdachte Grundrisse für jede Lebenssituation – egal ob Single, Senior:in oder mobilitätseingeschränkt

  • Stufenlose Zugänge, Aufzüge auf allen Etagen und rollstuhlgerechte Wohnungen für maximale Bewegungsfreiheit

Nachhaltige Bauweise für ein gesundes Wohnklima
  • Holz-Hybrid-Bauweise sorgt für angenehme Raumtemperaturen und ein natürliches Raumgefühl

  • Hohe Energieeffizienz schont Umwelt und Geldbeutel

Zukunftssichere Ausstattung
  • Fußbodenheizung, Wohnraumlüftung und Highspeed-Internet inklusive

  • Einbruchhemmende Türen, elektrisch steuerbare Rollläden und moderne Gebäudetechnik

Mehr Service, weniger Aufwand
  • Hausmeister-, Reinigungs- und Winterdienst sorgen für Komfort im Alltag

  • Waschlounge mit App-Steuerung (WE-Wash) – bequem und zeitsparend

Mobil & zentral gelegen
  • Fahrradabstellraum mit E-Bike-Ladestation

  • Hervorragende Anbindung an den ÖPNV, Innenstadt und Naherholungsgebiete

  • Barrierefreie Parkplätze direkt am Haus

66 barrierefreie 1-Zimmer-Apartments

  • Wohnfläche: 22–52 m²
  • Mit Balkon oder Terrasse (je nach Lage)
  • Ideal für Einzelpersonen, Senior:innen, Berufseinsteiger:innen oder temporäre Mieter:innen (z. B. Projektmitarbeiter:innen)

9 rollstuhlgerechte 2-Zimmer-Wohnungen

  • Wohnfläche: 45 m²
  • Optimale Grundrisse für mehr Bewegungsfläche
  • Mit Balkon oder Terrasse (je nach Lage)
  • Besonders geeignet für Menschen mit erhöhtem Assistenzbedarf

Ausstattungsmerkmale

  • Barrierefreies Duschbad
  • Fußbodenheizung
  • Elektrisch bedienbare Rollläden
  • Highspeed-Internet
  • Einbruchhemmende Wohnungstüren (z. B. RC2-Standard)
  • Wohnraumlüftung
  • Zentrale Schließanlage mit kontrolliertem Zugang
  • Aufzug zu allen Etagen
  • Beheizung und Warmwasseraufbereitung über Fernwärme
  • Servicedienstleistungen wie Unterhaltsreinigung, Garten- und Winterdienst
  • Energieeffiziente LED-Beleuchtung in den Allgemeinbereichen
  • Photovoltaikanlage zur Eigenstromnutzung im Gebäude
  • Zur Anmietung stehen barrierefreie Parkplätze direkt am Haus zur Verfügung

Vermarktung

Vermietung ab Mitte 2026!

Registrieren Sie sich unter dem u.g. Kontaktformular, damit wir Sie bei Vermarktungsstart gleich informieren. Die endgültigen Grundrisse und auch Mietpreise werden voraussichtlich Anfang 2026 feststehen!

Wir beraten Sie gern:
emmy@wohn-und-zweckbau.de

Etagenplan 1.Obergeschoss
Etagenplan 2.Obergeschoss
Etagenplan 3.Obergeschoss
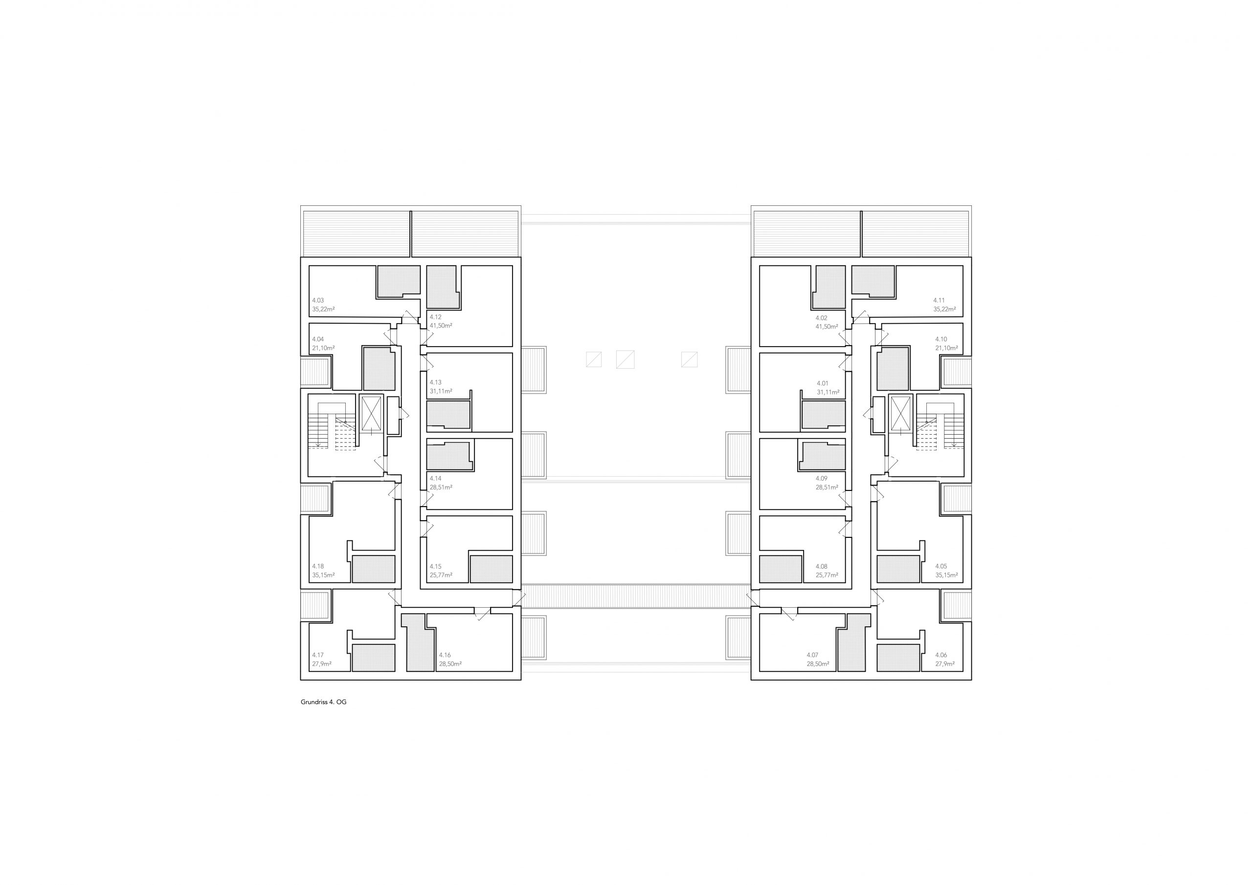
Etagenplan 4.Obergeschoss

Serviceleistungen

Über die Sie sich keine Gedanken machen müssen – da diese bereits in den Betriebskostenvorauszahlungen enthalten sind

Technische Daten​

PV-Anlage auf dem Gebäude

Fußbodenheizung in den Wohnungen

Glasfaseranschluss bis direkt in die Wohnung

Heizungsart Fernwärme

Warmwasseraufbereitung Fernwärme

Aufzugsanlagen der Firma Kone mit 24h Service im Notfall 

Sämtliche Wohnungen erhalten separate Wasseruhren und Wärmemengenzähler

Hier wartet Ihr neues Zuhause

Friedrich-Voigtländer-Straße 45, 46, 47; Berliner Str. 43 in 38104 Braunschweig

Bei Ansicht der Karte werden Daten an Google übertragen.

Über Emmy Living

Neubauprojekt „Emmy Living“ Friedrich-Voigtländer-Straße 45, 46, 47; Berliner Str. 43 in 38104 Braunschweig

Im Herzen des lebendigen Stadtteils Braunschweig-Gliesmarode entsteht mit „Emmy Living“ ein zukunftsweisendes neues Wohnquartier, das modernes Wohnen mit sozialen und ökologischen Standards vereint. Das Projekt verbindet barrierefreie Wohnungen, nachhaltige Architektur und Serviceeinrichtungen, die das Leben der Bewohner:innen erleichtern.

Im Erdgeschoss sind zwei Gewerbeeinheiten vorgesehen – eine der Einheiten wird für das neue Servicecenter der Braunschweiger Landessparkasse genutzt. Darüber hinaus wird eine Waschlounge mit Servicedienstleistung über WE-Wash integriert, um den Bewohner:innen zusätzlichen Komfort zu bieten. Modern gesteuert über die eigene WE-Wash-App.

Emmy Living wird als Green Building mit dem DGNB Gold Standard zertifiziert. In Kombination mit der QNG Plus Zertifizierung ist es das nachhaltigste Gebäude in Braunschweig.

Die Obergeschosse des Gebäudes entstehen in nachhaltiger Holzbauweise, was sowohl eine besonders hohe Energieeffizienz als auch ein angenehmes Raumklima gewährleistet. Insgesamt 75 moderne und attraktiv gestaltete Mini-Apartments bieten zeitgemäßen Wohnkomfort. Die durchdachten Grundrisse sind unter anderem auf die Bedürfnisse von Senior:innen und mobilitätseingeschränkten Personen ausgerichtet. Damit erfüllt das Gebäude höchste Ansprüche an Wohnqualität und Nachhaltigkeit. Die Ausrichtung auf DGNB Gold und QNG Plus-Zertifizierungen garantiert höchste Effizienz und Zukunftsfähigkeit.

Nachhaltigkeit & Qualität
„Emmy Living“ wird nach den höchsten Standards für nachhaltiges Bauen errichtet und strebt die Zertifizierungen DGNB Gold sowie QNG Plus an. Diese Auszeichnungen stehen für herausragende ökologische, ökonomische und soziokulturelle Qualität und garantieren ein gesundes, energieeffizientes und zukunftssicheres Wohnumfeld.

Wohnkonzept & Architektur
Die moderne Architektur des Gebäudes bietet eine Vielzahl an barrierefreien Wohneinheiten, die durch durchdachte Grundrisse und hochwertige Ausstattungen überzeugen. Großzügige Fensterflächen sorgen für lichtdurchflutete Räume, während die Außenanlagen mit Grün-flächen und Begegnungszonen zur Lebensqualität beitragen.

Integriertes Servicecenter der Braunschweiger Landessparkasse und flexible Gewerbefläche mit vielfältigem Nutzungspotenzial
Im Erdgeschoss des Gebäudes entsteht ein neues Servicecenter der Braunschweiger Landesparkasse, das für zusätzliche Frequentierung und eine hohe Standortqualität sorgt. Ergänzt wird dieses Angebot durch eine weitere frei verfügbare Gewerbeeinheit, die sich flexibel für unterschiedliche Nutzungskonzepte eignet – beispielsweise für eine Physiotherapiepraxis, Arztpraxis, Tagespflegeeinrichtung, soziale Dienste oder gesundheitsnahe Dienstleistungen. Die barrierefreie Erschließung sowie die direkte Anbindung an die Wohnnutzung im Gebäude machen die Fläche besonders attraktiv für Anbieter, die serviceorientierte oder beratende Leistungen in einem wohnnahen Umfeld anbieten möchten.

Lage & Infrastruktur
Die Friedrich-Voigtländer-Straße/Berliner Straße liegt in einem etablierten Wohngebiet mit hervorragender Anbindung an den öffentlichen Nahverkehr. Die Bus- und Stadtbahnhaltestellen sind wenige Meter nur entfernt. Einkaufsmöglichkeiten, medizinische Versorgungseinrichtungen, Schulen und Freizeitangebote befinden sich in unmittelbarer Nähe, was den Standort besonders attraktiv macht.

Weitere Merkmale:

  • Großer ebenerdiger Fahrradabstellraum für ca. 100 Fahrräder
  • Lademöglichkeit für E-Bikes
  • Attraktive Außenanlagen mit Grünflächen und Begegnungszonen
  • Zentrale Lage mit ausgezeichneter Infrastruktur
  • Kurze Wege ins Naherholungsgebiet Riddagshausen
  • Schnelle Verbindung zur Innenstadt und zur Autobahn A2

 

Fazit:
„Emmy Living“ steht für ein innovatives Wohnkonzept, das Nachhaltigkeit, soziale Verantwortung und Lebensqualität in den Mittelpunkt stellt. Ob als neues Zuhause oder Standort für soziale Dienstleistungen – dieses Projekt bietet vielfältige Perspektiven für eine lebenswerte Zukunft in Braunschweig.

BEISPIEL
Wohnungsbeispiel
Wohnungsbeispiel

Warum Emmy-Living?

Emmy Noether ist Namenspatin für unser Wohnprojekt.

Der Name „Emmy Living“ kann als Hommage an Emmy Noether verstanden werden – eine Frau, die ihrer Zeit weit voraus war.

Sie steht symbolisch für:

  • Starke Lebensentwürfe unabhängig vom Alter oder Hintergrund

  • Durchdachte Strukturen, wie sie auch in modernen Wohnkonzepten angestrebt werden

  • Barriereabbau – sowohl geistig als auch räumlich

Wer war Emmy Noether?

Emmy Noether (1882–1935) war eine wegweisende deutsche Mathematikerin, die als eine der bedeutendsten Wissenschaftlerinnen des 20. Jahrhunderts gilt. Ihre Arbeiten legten zentrale Grundlagen in der abstrakten Algebra und der theoretischen Physik – insbesondere mit dem berühmten Noether-Theorem, das bis heute eine fundamentale Rolle in der Physik spielt.

Ein Leben für Logik, Struktur und Gleichheit!

  • Sie war eine der ersten Frauen, die sich in der akademischen Welt der Mathematik durchsetzen konnten – trotz großer gesellschaftlicher Widerstände.
  • Ihr mathematisches Denken war geprägt von Struktur, Klarheit und Eleganz – Eigenschaften, die auch in der modernen Architektur und Wohnraumgestaltung hoch geschätzt werden.
  • Als Persönlichkeit stand sie für Gleichberechtigung, geistige Unabhängigkeit und wissenschaftlichen Fortschritt.

Wohn- und Zweckbau Niedersachsen GmbH

Ihr Ansprechparter für Emmy Living

E-Mail: emmy@wohn-und-zweckbau.de

Telefon: 0531 23 33 33

Melden Sie sich gern bei uns

Für alle, die bereits einen Fuß in der Tür haben wollen!